Demolizione di fabbricato esistente e costruzione di un nuovo edificio residenziale e sistemazione area esterna - 2024/2025 - centro storico di Bordighera (IM) - in costruzione
TIPOLOGIA: EDIFICIO RESIDENZIALE BIFAMILIARE
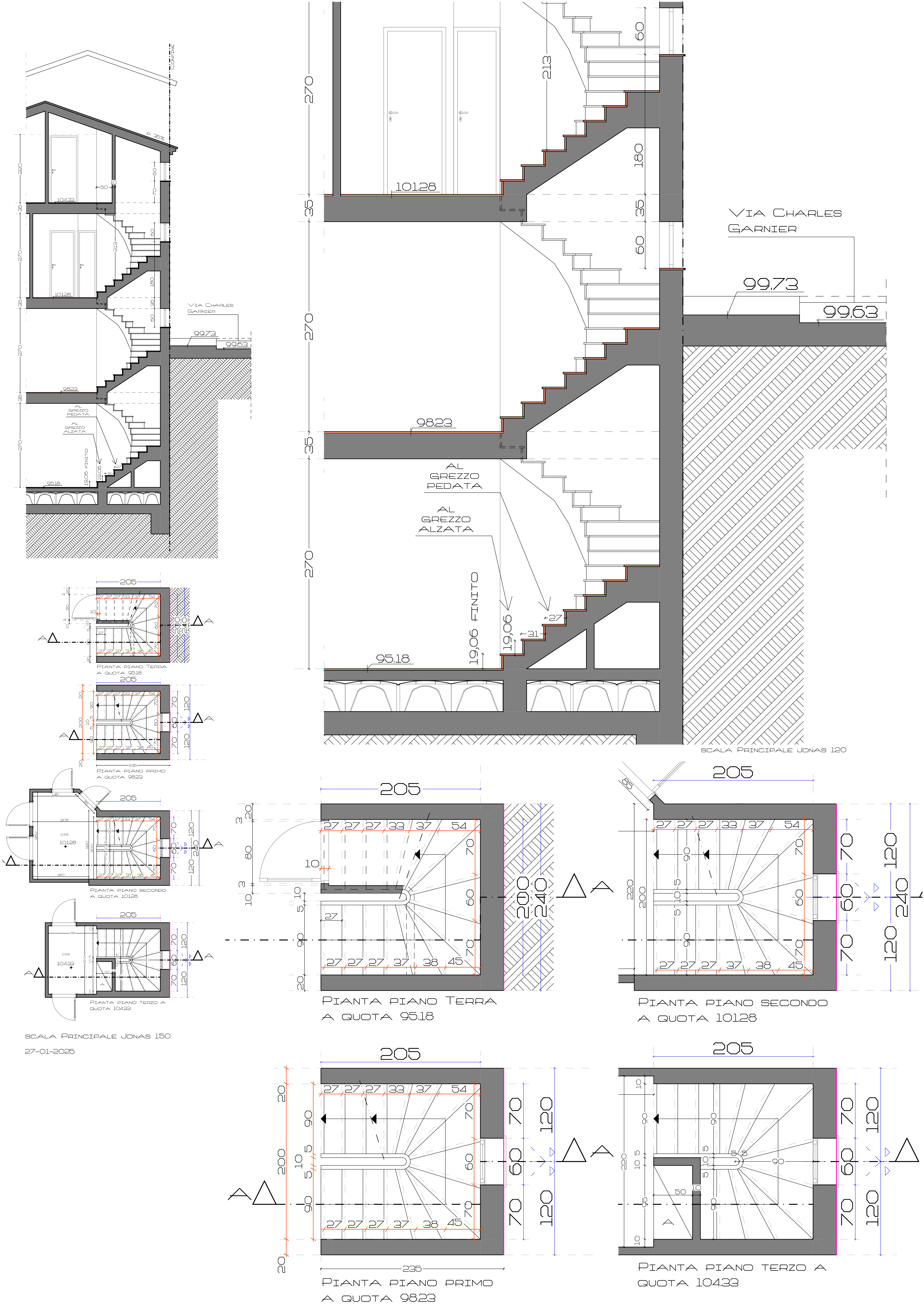
LOCALIZZAZIONE: COMUNE DI BORDIGHERA (IM) - VIA GARNIER ( CENTRO STORICO)
COMMITTENTE: PRIVATO
ANNO: 2024\2025
VOLUME: 1.500,00 MC
1. Contesto e stato di fatto
Il fabbricato oggetto di intervento, costruito intorno agli anni ’30, è situato in fregio al centro storico di Bordighera, all’interno di una cortina di edifici di medie e grandi dimensioni prospicienti sul mare. L’immobile risulta in parte diruto, a causa di bombardamenti della Seconda Guerra Mondiale e del naturale degrado temporale, come evidenziato dalla documentazione fotografica allegata. La muratura crollata è ancora presente in sito, facilmente individuabile come preesistente.
La posizione centrale e la valenza ambientale dell’immobile rendono la sua riqualificazione ambientale e urbana indispensabile. Il fabbricato fa parte di un contesto di particolare pregio paesaggistico, in prossimità di Villa Garnier e di un antico palmeto caratterizzante lo stato dei luoghi.
2. Motivazioni dell’intervento
La ristrutturazione dell’edificio esistente è impraticabile per la tipologia strutturale preesistente, sia per motivi di sicurezza (adeguamento sismico) sia per lo stato di degrado.
Pertanto, il progetto prevede la totale demolizione e ricostruzione dell’edificio con aumento volumetrico, nel rispetto dei parametri di altezza, tipologia e dimensioni volumetriche delle costruzioni circostanti, in applicazione della normativa denominata “Piano Casa”.
L’intervento consente di recuperare uno spazio attualmente percepibile come “vuoto da colmare”, senza alterare negativamente il paesaggio urbano: il nuovo edificio risulta, infatti, mitigato dalla vegetazione esistente, come i gruppi di palme, e si inserisce armonicamente nella cortina di edifici di via Charles Garnier.
3. Descrizione del progetto
Il nuovo fabbricato sarà composto da quattro piani fuori terra, con copertura a lastrico solare isolato, finitura in tavolato simil “millerighe”, gronde e pluviali in rame, e piane/copertine in pietra di Cardoso.
Saranno realizzate due unità abitative, disposte sui quattro livelli e divise verticalmente.
Per ridurre l’impatto volumetrico, l’edificio sarà differenziato cromaticamente, dando vita a due volumi percepibili distinti ma coerenti con la cortina esistente.
3.1 Materiali e finiture
-
Struttura portante: cemento armato.
-
Murature perimetrali: a camera d’aria con isolamento interposto.
-
Tramezze interne: forati da 8 cm o doppi forati con isolamento per i divisori tra alloggi.
-
Intonaci interni: a calce, frattazzo fine, tinteggiatura lavabile.
-
Pavimenti interni: gres porcellanato, travertino o legno.
-
Rivestimenti: ceramica.
-
Porte interne: legno laccato.
-
Infissi esterni: alluminio o legno (persiane/finestre).
-
Balaustre e parapetti: metallo zincato verniciato, design semplice.
-
Facciate: tinteggiate con colori locali liguri.
3.2 Spazi esterni
-
Pavimentazioni: pietra o gres porcellanato effetto pietra per percorsi e vialetti di accesso.
-
Recinzioni: cancellata metallica a bacchetta semplice su piccolo cordolo in pietra locale (h 40–50 cm), altezza massima complessiva 2,00 m.
-
Piantumazioni: essenze rampicanti a mitigazione delle recinzioni; le piante eventualmente rimosse saranno sostituite con equivalenti tipologici.
4. Infrastrutture e impianti
Il fabbricato sarà collegato alle reti esistenti:
-
Idrica, elettrica e gas.
-
Scarico acque bianche e nere, con vasca di ritardo esistente lungo Via Garnier.
5. Inserimento paesaggistico e rispetto normativo
L’intervento si integra armonicamente con l’ambiente circostante:
-
Rispetta le altezze e le volumetrie tipiche del contesto storico.
-
Migliora l’estetica della zona riqualificando un rudere esistente.
-
Non altera negativamente la visibilità dalla costa, essendo mitigato dalla vegetazione presente.
6. Conclusioni
Il progetto rappresenta un intervento di riqualificazione necessario, coerente con il contesto storico, paesaggistico e urbano di Bordighera. La demolizione e ricostruzione garantiscono sicurezza strutturale, adeguamento sismico e valorizzazione estetica, restituendo al contesto un edificio di qualità e perfettamente inserito nella cortina storica.

