Progetto di edificio residenziale - Bordighera (IM) - 2025\2026 - in costruzione
TIPOLOGIA: EDIFICIO RESIDENZIALE
UBICAZIONE: COMUNE DI BORDIGHERA (IM) - VIA ROBERTO
COMMITTENTE: PRIVATO
ANNO: 2025\2026
VOLUME: 1.200,00 MC
1. Contesto urbanistico e stato di fatto
L’immobile oggetto di intervento si trova in Via Roberto, Bordighera, in zona residenziale consolidata e centrale.
Attualmente l’edificio è costituito da una costruzione monopiano con copertura a due falde, di dimensioni ridotte rispetto agli edifici circostanti, i quali si sviluppano su più piani.
Tale condizione rende l’edificio esistente una anomalia tipologica e volumetrica, poco integrata nel paesaggio urbano.
2. Obiettivi dell’intervento
L’intervento prevede la demolizione e ricostruzione dell’edificio, con incremento della volumetria nel rispetto dell’impronta originaria e delle disposizioni del Piano Regolatore.
Gli obiettivi principali sono:
Riqualificare l’immobile e l’area circostante.
Ripristinare una tipologia edilizia contemporanea e coerente con il contesto urbano.
Migliorare l’inserimento paesaggistico e i rapporti con le volumetrie adiacenti.
3. Descrizione del progetto
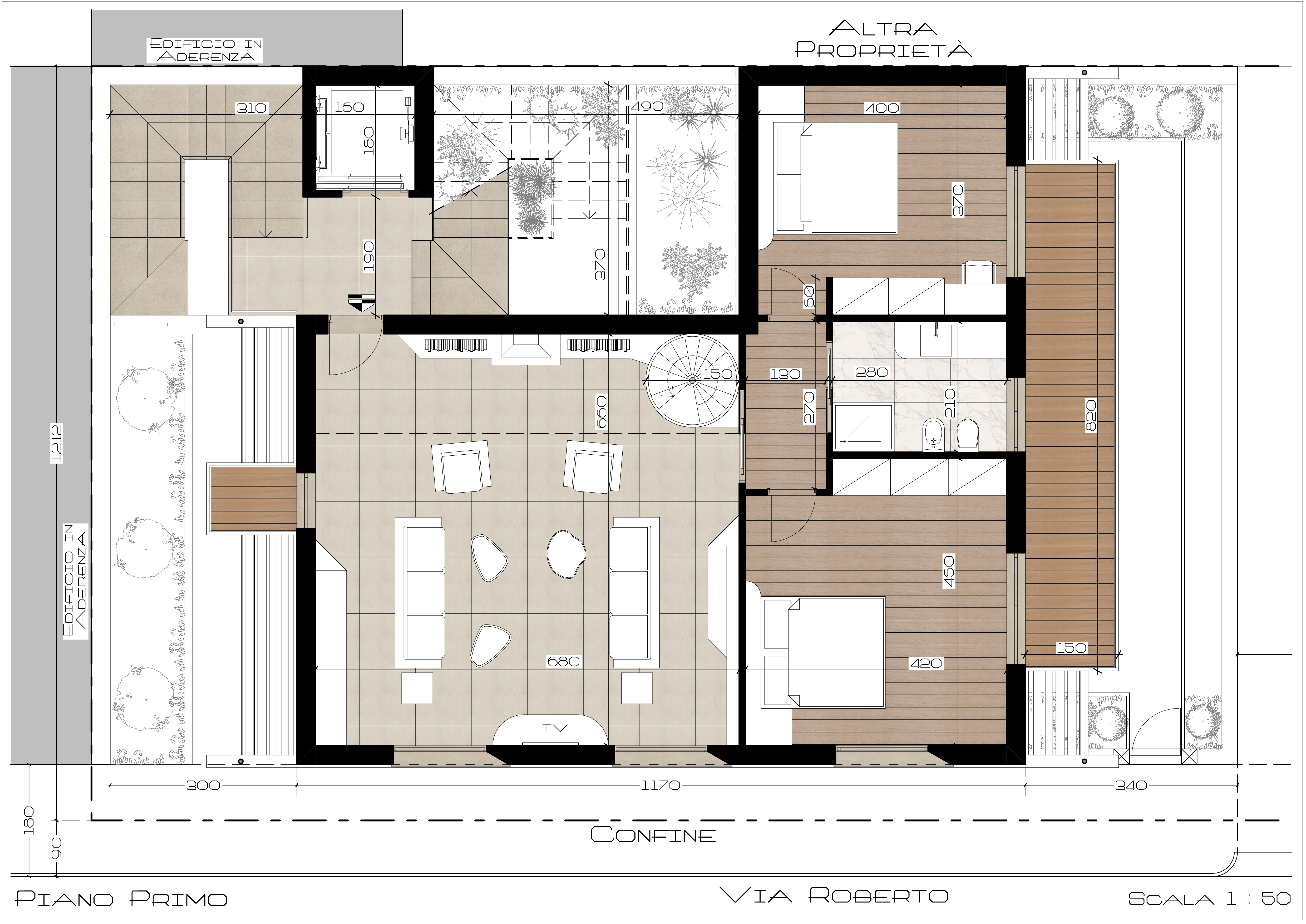
Il nuovo edificio avrà quattro livelli complessivi, di cui:
Un piano interrato: accessibile tramite rampa sul lato sud, destinato a garage, cantine, locali tecnici e magazzini.
Tre piani fuori terra, con il piano attico ribassato rispetto ai sottostanti, dotato di terrazza.
L’altezza complessiva rientra nei limiti previsti dalle normative vigenti.
L’ingresso principale sarà collocato sul lato nord, con accesso da scala esterna in parte in muratura e in parte metallica.
Al piano terra sono previste aree verdi adibite a giardino, con essenze tipiche locali.
La copertura sarà a falde inclinate e ospiterà collettori solari.
4. Caratteristiche costruttive e materiali
Struttura: cemento armato con pareti perimetrali a cavedio e isolamento.
Tamponamenti interni: tramezzi forati da 8 cm, intonaco a calce e finitura a spatola fine, tinteggiato con pittura lavabile.
Pavimenti interni: gres porcellanato, travertino o piastrelle in legno.
Rivestimenti interni: ceramica.
Infissi: alluminio brunito.
Porte interne: legno laccato.
Grondaie e pluviali: rame.
Coprifili e superfici di finitura esterne: ardesia.
Pavimentazioni esterne: gres porcellanato effetto pietra, estese anche ai camminamenti.
Finiture facciata: intonaco per i primi tre livelli, rivestimento in doghe WPC all’ultimo piano.
Sulle facciate saranno installati frangisole in corrispondenza delle aperture principali, con funzione sia estetica che di schermatura solare.
5. Infrastrutture e impianti
Allacciamenti: l’edificio è già servito da rete fognaria (Via Roberto), acquedotto comunale ed energia elettrica.
Smaltimento acque meteoriche: convogliamento naturale nel terreno.
Energia rinnovabile: installazione di collettori solari sulla copertura.
6. Inserimento paesaggistico e conformità urbanistica
Il nuovo edificio rispetta:
L’altezza massima consentita.
Le distanze dai confini e dagli edifici limitrofi.
Le prescrizioni del Piano Regolatore Generale.
L’intervento consente di riequilibrare i volumi rispetto al contesto, migliorando l’aspetto complessivo della via e valorizzando una posizione centrale e strategica.
7. Conclusioni
Si ritiene che il progetto di ricostruzione risponda pienamente all’esigenza di riqualificazione urbana, garantendo un migliore inserimento paesaggistico e incrementando la qualità architettonica dell’area.

